for sale town-house with independent entrance of 370 sqm

for sale town-house with independent entrance of 370 sqm

DESCRIPTION: Town-house with independent entrance, free on three sides of a total of 370 sq.m., with a pretty outdoor courtyard boasting an annex currently used as a tool shed, an oven and a barbecue.
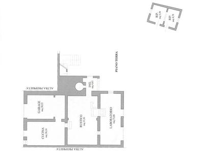
The property spreads out upon three levels and is composed as follows: entrance hall, tavern, laboratory, kitchen and garage on the ground floor; entrance hall, bathroom, large living room with terrace and kitchen on the first floor; four bedrooms, hallway, bathroom and another terrace on the second floor.
It is possible to buy an agricultural land near the property.

CONDITIONS: The house, in good condition, needs some works of internal improvement.
Given its location and its size, it is suitable either to be used as a first home or to be divided into apartments for tourist rentals.
LPG independent heating system.

LOCATION: The property is located in a small village in the municipality of Castiglione del Lago, in a quiet location, in the immediate vicinity of the village of Città della Pieve, Moiano, where there are all the main services and amenities.

145.000,00 €

  • Property ID: IL396
  • Price: 145.000,00 €
  • Region: Umbria
  • Province: Perugia
  • Municipality: Castiglione del Lago
  • Zone: vicinanze
  • Typology: Sales
  • Category: Villas and Indipendent Houses
  • Bedrooms: 4
  • State: Good conditions/Ready-to live
  • Bathrooms: 2
  • Number of floors: 3
  • Surface: 370 mq
  • Level: on three levels
  • Garage: Si
  • Balcony: Yes
  • Garden: Yes

Plans

More Information su IL396

Message forwarded successfully!
Thank you for contacting us.